VirtualBlueprint Innovations
Digital Twins
815.295.1487

Existing Conditions & Reality Capture for Design and Construction
Architects & Engineers
Reliable existing-conditions documentation, registered point clouds, and spatial data to support design, renovation, and coordination.
Construction & Owners
As-built documentation, progress capture, and site context for planning and execution.
Property & Real Estate
Visual documentation and virtual tours to support marketing, leasing, and remote review.
Services
We provide professional existing-conditions documentation and reality capture services to support design, engineering, and construction workflows. Our deliverables are structured to integrate cleanly into architectural and engineering environments, while remaining flexible for property and real estate use cases.

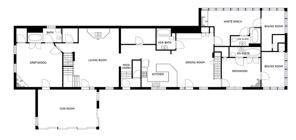
Existing Conditions & As-Built Documentation
Accurate spatial documentation to support renovation, retrofit, and design coordination. Deliverables are structured for architectural and engineering workflows and intended for real-world use in planning and design.
-
​

Registered Point Clouds
Clean, registered point cloud deliverables suitable for architectural and engineering use. Files are organized and ready for use in Revit, AutoCAD, Civil 3D, and similar platforms.
​


Digital Twins & Virtual Walkthroughs
Interactive spatial representations used for remote review, coordination, and documentation. Ideal for teams that need reliable visual context without repeated site visits.
​

Property & Real Estate Documentation
Visual documentation and virtual tours to support marketing, leasing, and remote evaluation when appropriate.
​
National Reach - Locally Operated
Bloomington, IL, USA
815.295.1487
About Virtual Blueprint Innovations
Virtual Blueprint Innovations provides reliable existing-conditions documentation and reality capture services for design, engineering, and construction. Our focus is accuracy, clarity, and deliverables that can be confidently used for planning, renovation, and coordination.
We specialize in capturing and organizing spatial data that supports real-world workflows — including registered point clouds, digital twins, and as-built documentation. Our work is designed to integrate cleanly into architectural and engineering environments, not just look good on screen.
With a background rooted in construction and technical documentation, we understand how existing-conditions data is actually used downstream. That perspective allows us to deliver practical, dependable information that teams can trust throughout the lifecycle of a project.
In addition to design and construction support, we also provide high-quality visual documentation and virtual tours for property and real estate needs when appropriate.
Please contact us today for more information or general inquiries. A team member will respond to you within 24 hours.
